top of page
Brava
Ubicación
Cancún, Quintana Roo
Estatus
Concluido
(En funcionamiento)
Año
2019
Colaborador
ILWT
(Arq. Miguel Vega)
Puera Left
(D.I. David Vázquez)
Tipología
Retail
Equipo
Arq. Yissel Nolasco
Arq. Noe Urquijo

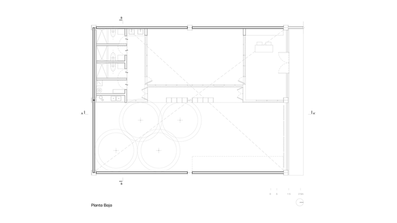
Brava Estudio es la adecuación de un local comercial en la ciudad de Cancún,Quintana Roo en donde se imparten clases de pole dance, entrenamiento funcional y yoga. Se contempló la división del local a través de un único elemento de madera, un lambrín de pino, que funge como el objeto que divide y articula todas las dependencias.
Para los acabados se hizo énfasis en las cualidades inherentes de los materiales elegidos, por ejemplo, el piso terminado es cemento pulido, los muros son de block con pintura negra y el lambrín de madera es de pino. En la parte de servicios se optó por piedras naturales como mármol y granito. Se recurrió a la iluminación como una herramienta para hacer énfasis en la altura y longitud del local, obteniendo como resultado un espacio diáfano, cálido y bien articulado.









Planimetría
Kiltro Polaris
Brava
bottom of page



