top of page
Domus Peepem
Ubicación
Cancún, Quintana Roo
Estatus
En obra
Año
2020
Colaboradores
JC Arquitectura
(Arq. Juan Carral O’Gorman)
WEWI Studio
(Arq. Paloma Flores,
Arq. Patricio Manzo)
Tipología
Vivenda Colectiva
Equipo
Arq. Valentina Bellego

La Colonia Donceles 28, muy cerca de lo que es la Zona Fundacional de Cancún, es una colonia de vivienda de interés social desarrollada por el INFONAVIT a principios de los años ochenta. En esa época, la colonia estaba cerca del acceso a la zona hotelera porque estaba pensada para albergar a la gente que ahí laboraría. Conforme la ciudad fue creciendo, la mancha urbana fue absorbiendo poco a poco a la colonia, que finalmente quedó en una posición privilegiada. Hoy en día la Colonia Donceles está pegada a una de las zonas de mayor plusvalía de la ciudad (Puerto Cancún), cerca de Puerto Juárez y cuenta con acceso a vías primarias de comunicación que la conectan con toda la cuidad sin dejar de lado su naturaleza y sus orígenes.
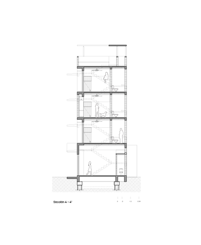
Dentro de este contexto surge Domus Peepem como un edificio de usos mixtos que pertenece a una serie de intervenciones habitacionales que se empezaron hace ya casi 5 años al interior de la colonia. La particularidad de este proyecto radica en el aprovechamiento de la sección como una aliada para generar una cual interior que en otros proyectos no se había logrado. La vivienda, aunque diáfana y abierta, está separada por un cambio de altura que marca la diferencia entre lo público y lo privado.




Planimetría
Kiltro Polaris
Domus Peepem
bottom of page







